Wachstumszentrum, Karlsruhe

Auf dem ehemaligen Schlachthof sollte in der Nachfolge des "Perfekt Futur" ein weiteres unkonventionelles Konzept für ein Gebäude umgesetzt werden, in dem die expandierenden Firmen der Kultur- und Kreativwirtschaft eine inspirierende Arbeitsumgebung finden. Das Wachsttums- und Festigungszentrum soll ein energieeffizientes, hochflexibles Gebäude mit Strahlkraft über die Grenzen des Areals hinaus werden.

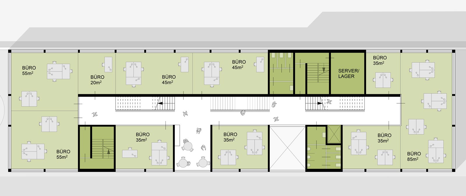
Ein intelligentes Erschließungskonzept sorgt für offene und geschlossene Arbeitsbereiche wie für große und kleine Einheiten, der Kommunikation soll Raum geboten werden. Im Zentrum steht dabei die offene „Himmelstreppe", die alle Geschosse miteinander verbindet. Sie sorgt dafür, dass die Einheiten nicht nur horizontal durch Flure, sondern auch vertikal durch Lufträume miteinander kommunikativ verknüpft werden.

Art

Studie, 2014

Ort

Karlsruhe

Auslober

Stadt Karlsruhe

Bearbeitung

M. Dürr | H. Baurmann | V. Heid | A. Chang

Visualisierung

Stuchlik 3D