Wohnregal B-2, Karlsruhe

Sechs Familien mit unterschiedlichen Lebens- und Wohnbedürfnissen in einem Gebäude unterzubringen wirft die Frage auf, wie sich ein derartiger Baukörper nach außen hin zeigen soll. Wir entschieden uns für ein von alters her bekanntes Prinzip: Individualisierung im Innern, Anonymisierung nach außen. Die bevorzugte Lage inmitten des Albgrüns eines Karlsruher Stadtteils war Gegenstand eines städtebaulichen Wettbewerbs.

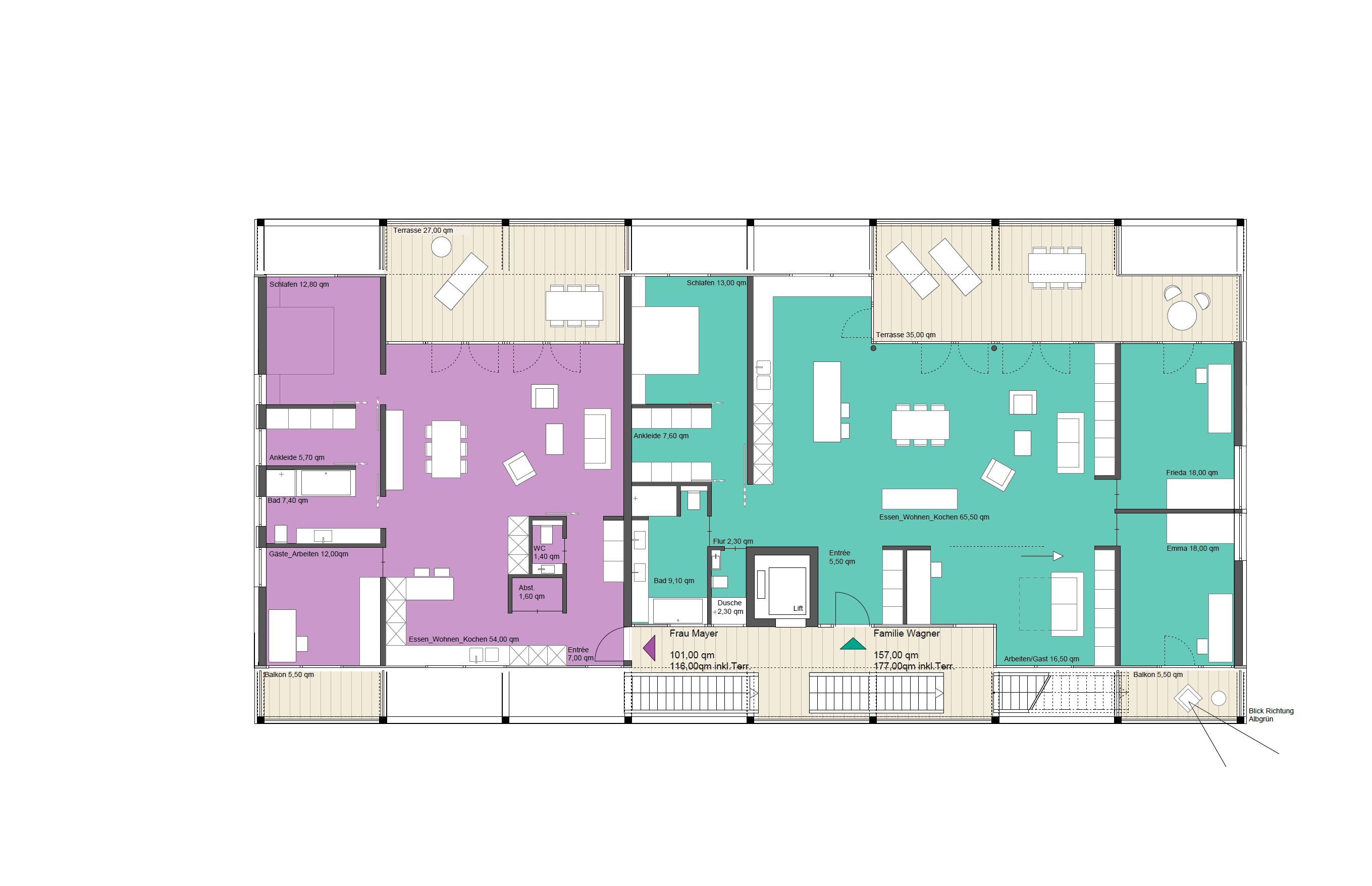
Da die Kubatur des Gebäudes durch den Bebauungsplan exakt vorgegeben war, entwarfen wir eine aus acht Segmenten bestehende Schotten-Struktur, in die die einzelnen Wohnungen in unterschiedlicher Weise eingefügt werden. Auf den Längsseiten sind Erschließungszonen in Form von Stegen und Treppen sowie Balkone vorgelagert, sodass der Baukörper sich nach außen wie ein überdimensionales Regal zeigt.

Die einzelnen Wohnungen sind höchst unterschiedlich: es gibt zwei Maisonetten, zwei Etagenwohnungen und zwei Penthouse-Einheiten. Allen Wohnungen sind mehrere Balkone und Terrassenflächen zugeordnet. Durch das klare Tragsystem ist der Zuschnitt der einzelnen Wohneinheiten variabel, und auch die Erschließung ist in unterschiedlichen Varianten denkbar: Himmelstreppe, Stapeltreppe, Aufzug in- oder außenliegend.

Die Maisonetten können wahlweise kreuzweise verschränkt werden, um jeder Einheit eine dreiseitige Belichtung zu garantieren, die Erdgeschosswohnungen können um eine Treppe in ein weiteres Zimmer im Untergeschoss erweitert werden. Ein Gemeinschaftsraum und ein Festhof im Souterrain ergänzen das Angebot.

Das Wohnregal schafft ein Maximum an Flexibilität und Individualität hinter einer ruhigen, wirtschaftlich zu errichtenden Fassade. Es ist als variabler Stadtbaustein konzipiert und trägt damit den Prozessen einer Baugruppe in besonderem Maße Rechnung.

Art

Studie, 2010

Ort

Karlsruhe-Grünwinkel

Auslober

Baugruppe B-2

Bearbeitung

H. Baurmann | M. Dürr | O. Neufeld | S. Föry

Visualisierung

M. Becker

Modellbau

F. Bengert