Geschäfts- und Wohnhaus P 90, Karlsruhe-Durlach

Städtebau Das Grundstück liegt direkt an der Pfinztalstraße am westlichen Stadteingang zur Durlacher Altstadt, die sich im Stadtgrundriss durch eine markante Ringstraße abzeichnet. Am westlichen Rand der Altstadt weitet sich der Straßenraum der Pfinztalstraße zum Platz vor der Friedrich Schule, am östlichen Rand weitet sich ihr Straßenraum zum Marktplatz vor dem Rathaus und der Stadtkirche. Ansonsten präsentiert sich die Pfinztalstraße in einem geschlossenen Straßenzug. Eine störende Ausnahme bildet das ehemalige Verwaltungsgebäude der BMD aus den 50er Jahren, das deutlich von der Straßenflucht zurückweicht und eine Brandwand und undefinierten Straßenraum zurücklässt. Wir schließen die Lücke und „reparieren" den Straßenraum am Eingang zur Altstadt, indem wir unseren Neubau wieder in die Straßenflucht rücken. Dadurch werden die beiden oben beschriebenen Platzräume, die den westlichen und östlichen Eingang zur Altstadt markieren, aufgewertet und gestärkt.

Durch die Abstraktion von ortstypischen Elementen wie Torbogen, stehende Fensterformate und horizonale Friese, passen wir unsere neue Fassade in den historischen Kontext ein. Die Gebäudehöhe entwickeln wir an Hand der angrenzenden Nachbarbebauung. Das unter Denkmalschutz stehende ehemalige Gasthaus „Grüner Hof" gibt die Anschlusshöhe im Westen vor, das giebelständige Seboldzentrum die Höhe im Osten. Dazwischen entsteht ein in der Höhe differenzierter Baukörper mit einem fünfgeschossigen Kopfbau als Abschluss. Der Giebel des Seboldzentrums wird freigestellt und bekommt mit dem Kopfbau ein Gegenüber. Zusammen bilden sie einen neuen stadträumlichen Durchgang zum BMD-Areal im Anschluss an die Amalienbadstraße.

An dieser städtebaulich signifikanten Stelle liegt der Eingang zum neuen Beratungszentrum der Sparkasse Karlsruhe. Der Zugang zur Kundenhalle liegt noch an der Pfinztalstraße, ein weiterer Zugang zur Beratung, der außerhalb der Öffnungszeiten der Filiale genutzt werden kann, liegt direkt am neuen Platz. Über diesen Platz wird das Quartier „Zur Gießerei" fußläufig erschlossen, zusätzlich zur bestehenden Durchfahrt, die vor allem der verkehrlichen Erschließung dient.

Plan Seite 3:
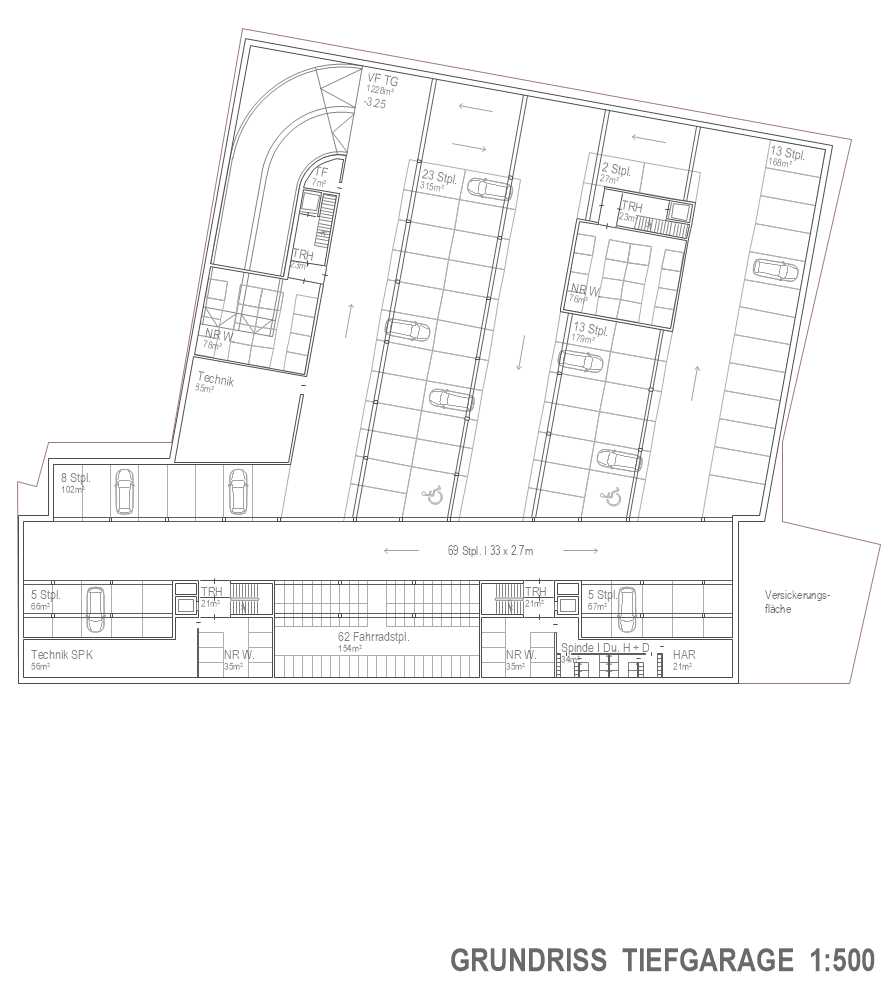
Die Durchfahrt wird durch einen ortstypischen Torbogen in der Fassade hervorgehoben. Im Anschluss an die Durchfahrt liegt ganz selbstverständlich die Zufahrt zur Tiefgarage und die Anlieferung für den Biomarkt. Hinter das Langhaus, das entlang der Straße steht, haben wir zwei Punkthäuser gesetzt, die mit Ihrer Körnung den Übergang ins Quartier schaffen und die Verbindung zu den beiden Köpfen der langen Bestandsbauten aufnehmen.

Zwischen den Punkthäusern liegt ein Hofraum in zweiter Reihe, der typisch ist für die Durlacher Altstadt. Hier werden die beiden Wohnhäuser erschlossen. Gegenüber der alten Maschinenhalle rücken wir mit einem Punkthaus von der Straße ab und schaffen Raum für einen Quartiersplatz mit Café, der zusammen mit dem geplanten Vorplatz des Kesselhauses ein Zentrum im neuen BMD-Areal werden kann.

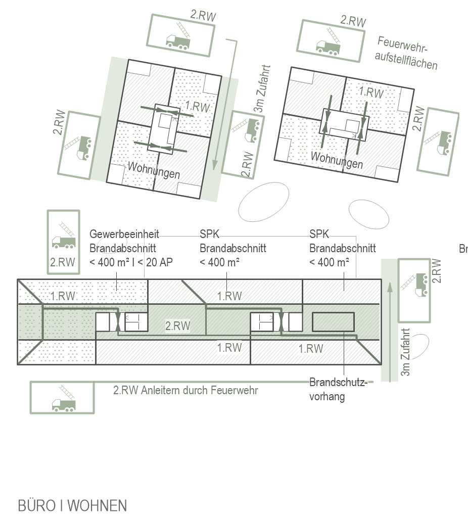
Eine gemeinsame Sockelzone verbindet das Langhaus mit den beiden Punkthäusern. Darin liegen Geschäfte, der Biomarkt, ein Café, das Bürgerzentrum, ein „Bewohnerraum", der Zugang zu den Wohnungen, den Gewerbeeinheiten und natürlich der Zugang zur Kundenhalle der Sparkasse Karlsruhe. Das Erdgeschoss ist somit fast ausschließlich mit öffentlichen Nutzungen belegt für ein lebendiges Quartier.

Außenraum Die Außenräume sind stark begrünt. Breitkronige Baumpflanzungen in begrünten Sitzinseln schaffen ein angenehmes Mikroklima im Quartier. Die Tiefgarage ist mit einer 50 cm starken Erdschicht überdeckt. Dadurch wird eine Bepflanzung möglich und Raum für Retention geschaffen. Die Beläge sind wasserdurchlässig und immer wieder aufgebrochen durch Pflanzbeete mit Staudengewächsen. Im Hofraum, der vor allem der Erschließung der beiden Wohnhäuser dient, liegen eingestreut Spiel- und Sportgeräte für Kinder und Erwachsene.
Ein wichtiges Element zur Regenrückhaltung sind die begrünten Dächer. Die Dächer des Langhauses und der Punkthäuser sind zusätzlich mit PV-Anlagen bestückt. Das Dach über dem Biomarkt ist intensiv begrünt mit Baumpflanzungen und dient neben der Retention als grüne Mitte für die Wohnungen.

Plan Seite 4:
Punkthäuser Die fünfgeschossigen Wohngebäude sind als Punkthäuser mit zentraler Erschließung organisiert. In der Regel werden vier Wohnungen pro Geschoss über einen lichten Hof mit Treppe und Aufzug erschlossen. Der Gebäudegrundriss erscheint als Abfolge konzentrischer Rechtecke. Im inneren Rechteck befindet sich die Eingangshalle mit Treppe und Aufzug als Zentrum. Darum legt sich die Erschließungs- und Installationszone der Wohnungen mit Fluren und Bädern. Darauf folgt eine großzügige Raumzone mit Zimmern, Küchen, Wohnräumen und Loggien. Hier kann die äußere Raumzone flexibel eingeteilt werden, da nur die Wände der Erschließungs- und Installationszone und der Außenfassade tragend ausgebildet sind. Aufgrund dieser Konstruktion ist ein flexibler Wohnungsmix möglich.

Langhaus Das Büro- und Wohngebäude ist als 3-Bund organisiert und wird in Holzhybridbauweise konstruiert, wobei bei allen Betonelementen der aus dem Abbruch gewonnene R-Beton verwendet wird. Stützen und Deckenelemente werden vorfabriziert. Dabei bestehen die wesentlichen tragenden Teile aus Holz, die entsprechend der baurechtlichen Vorschriften hochfeuerhemmend ausgebildet werden. Aufgrund der Schwingungen, des Schallschutzes und zur thermischen Nutzung der Gebäudemasse sind vorfabrizierte Holz-Beton-Verbunddecken vorgesehen. Die Erschließungskerne werden zur Aussteifung aus Stahlbeton erstellt.

Fassaden Die Fassaden werden mit keramischen Platten verkleidet. Dabei werden das Sockelgeschoss und das Langhaus mit hellen beigen Platten belegt, die beiden Punkthäuser ab dem 1. Obergeschoss jeweils in einem gedeckten grün und rot. Das sind Farbtöne, die typisch sind für die Durlacher Altstadt. Die Fensterformate sind stehend in den Obergeschossen, quadratisch im Erdgeschoss. Zur Pfinztalstraße zeigt sich in den beiden zurückgesetzten Obergeschossen die Holzkonstruktion auch in der Fassade.

Technik Die Büroeinheiten werden mit Heiz-Kühldecken und einer minimierten Kernzonenlüftung ausgestattet. Die Arbeitszimmer sollen über die Fenster belüftet werden. Die Wohnungen werden mit einer Fußbodenheizung im Winter geheizt und im Sommer gekühlt.

Art

Mehrfachbeauftragung, 2025

Ort

Durlach, Pfinztalstraße / Zur Gießerei

Auslober

Sparkasse Karlsruhe

Bearbeitung

M. Dürr | H. Baurmann | C. Süßmann | E. Schmitt | N. Münzer

Visualisierung

loomn Architekturkommunikation

Modellbau

W. Eichenlaub

Platzierung

2. Preis